hero

MĚSTSKÉ BYDLENÍ S DUŠÍ PŘÍRODY

image image
image image image
MODERNÍ BYDLENÍ V SRDCI
KOSTELCE NAD ORLICÍ

NA DOSAH PŘÍRODY
I CENTRA MĚSTA

Rezidence Zelený háj se nachází jen pár minut chůze od centra Kostelce nad Orlicí. Veškerá občanská vybavenost, školy i obchody jsou doslova na dosah ruky. A přitom – hned za domem začíná klidné zelené údolí potoku Štědrá, které přirozeně navazuje na krásnou krajinu Orlických hor.

Architektonické studio si při návrhu projektu dalo za cíl vytvořit domy, které nabídnou maximální soukromí, komfortní dispozice a promyšlené využití každého metru čtverečního a to všechno v moderním designu.

Rezidence Zelený háj nabízí jedinečné spojení městského komfortu a přírodního klidu – moderní rodinné bydlení, kde se kvalita života stává každodenní samozřejmostí.

První domy budou dokončeny v roce 2027

HLAVNÍ PŘEDNOSTI

ZAHRADA
S TERASOU
orientovaná pro dostatek soukromí
KRYTÝ
VSTUP
od auta domů suchou nohou
PROSTORNÝ
CAR PORT
s víceúčelovou kolnou
DRUHÉ PARKOVACÍ STÁNÍ
přímo na pozemku
NÍZKO ENERGETICKÁ ŘEŠENÍ
vytápění tepelným čerpadlem
KVALITNÍ MATERIÁLY
velkoformátové obklady až ke stropu
INDIVIDUÁLNÍ MOŽNOSTI
úprav v rámci balíčků Deluxe
PROMYŠLENÝ SYSTÉM
úložných prostor
VYBAVENÍ DOMŮ

STANDARD PREMIUM

Všechny domy jsou vybaveny ve vysokém standardu provedení STAN- DAR PREMIUM, které zahrnují například podlahové vytápění, kvalitní obložkové dveře, vinylová podlaha, plastová okna s izolačním trojsklem nebo velkoformátové obklady až ke stropu v koupelně.

Standardy vybavení staví na pečlivém výběru kvalitních značek českých i světových výrobců. Samozřejmostí je také v průběhu výstavby s Vámi upřesnit pozice osvětlení a elektrických zásuvek či přípravu pro kuchyň.

I přes vysoký standard v balíčku STANDARD PREMIUM vám rádi nabíd- neme možnost si zvolit nadstandardní vybavení ze skupiny DELUXE.

  • Podlahové vytápění
  • Tepelné čerpadlo
  • Vinylová podlaha
  • Podomítková baterie ve sprchovém koutě
  • Kvalitní obložkové dveře
  • Okna s izolačními trojskly
  • Walk in sprchový kout
  • Velkoformátové obklady až ke stropu v koupelně
  • Antracitové rámy oken v interiéru
  • Zastřešení vstupu
MOŽNOSTI

DELUXE

  • Rekuperační větrání
  • Fotovoltaická elektrárna
  • Nabíječka na elektromobil, případně příprava
  • Stínící systém
  • Vámi vybraný keramický obklad, či podlahovina
  • Komín s krbovými kamny
  • Rozšíření domu o další místnost

Pro toto vybavení Vám rádi připravíme individuální kalkulaci.

image image image
VYBERTE SI

VÁŠ NOVÝ DŮM

showcase
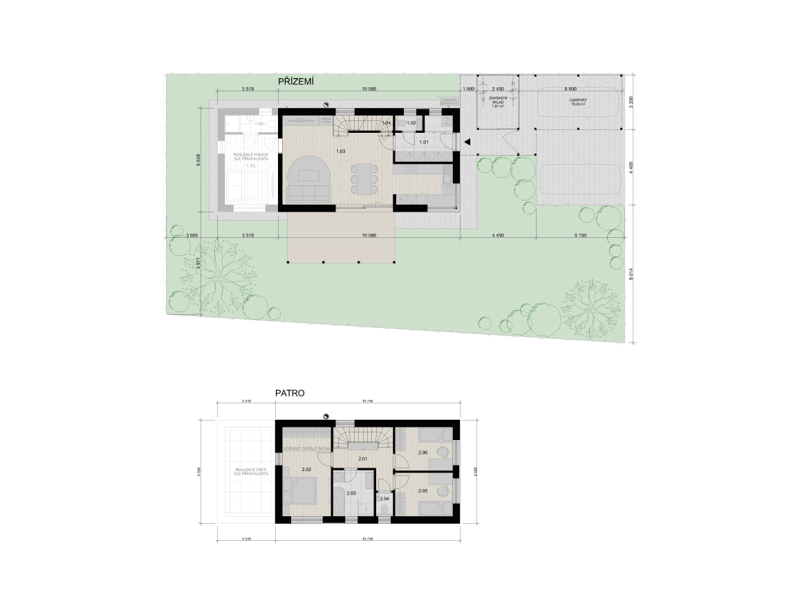
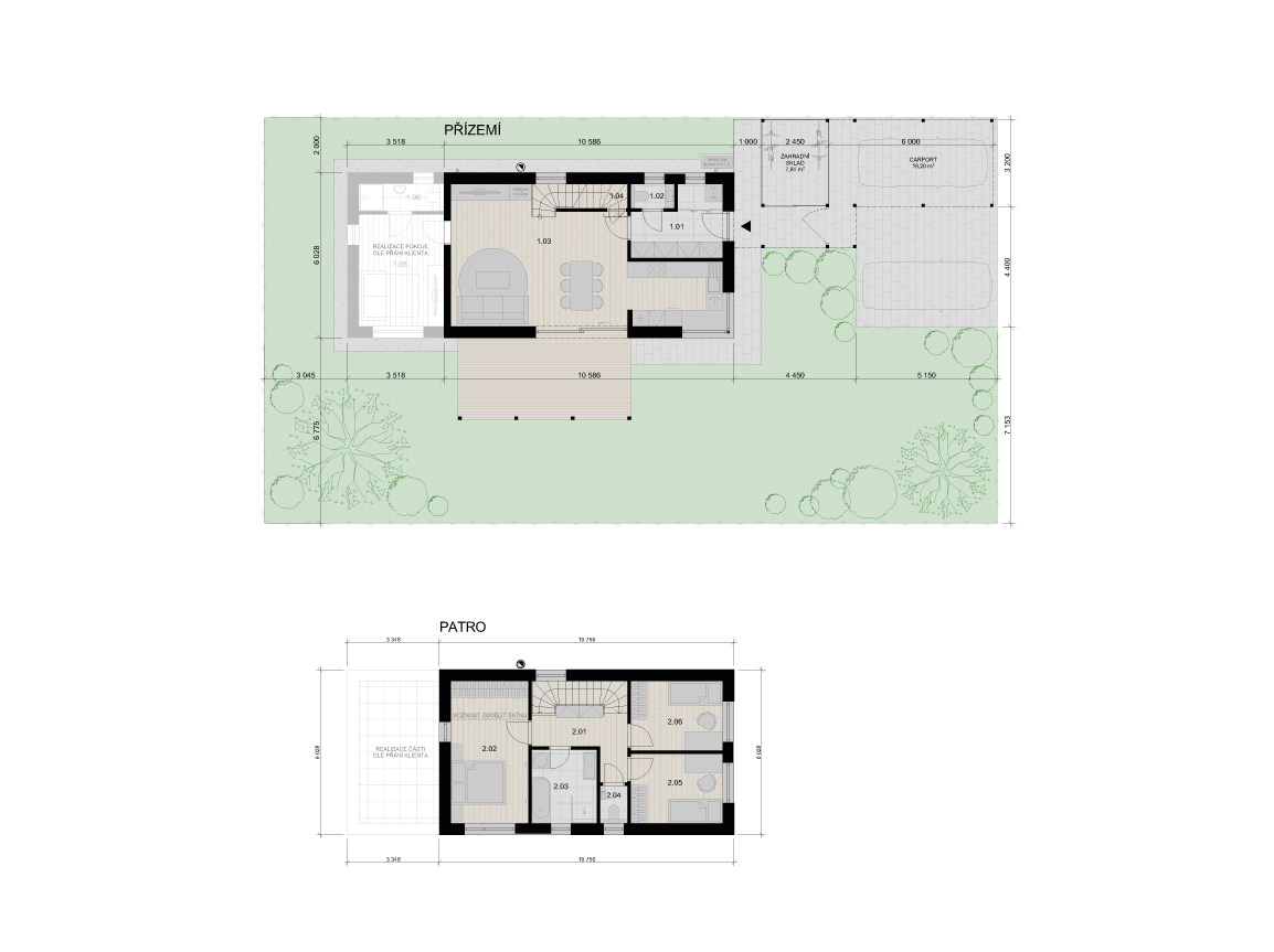
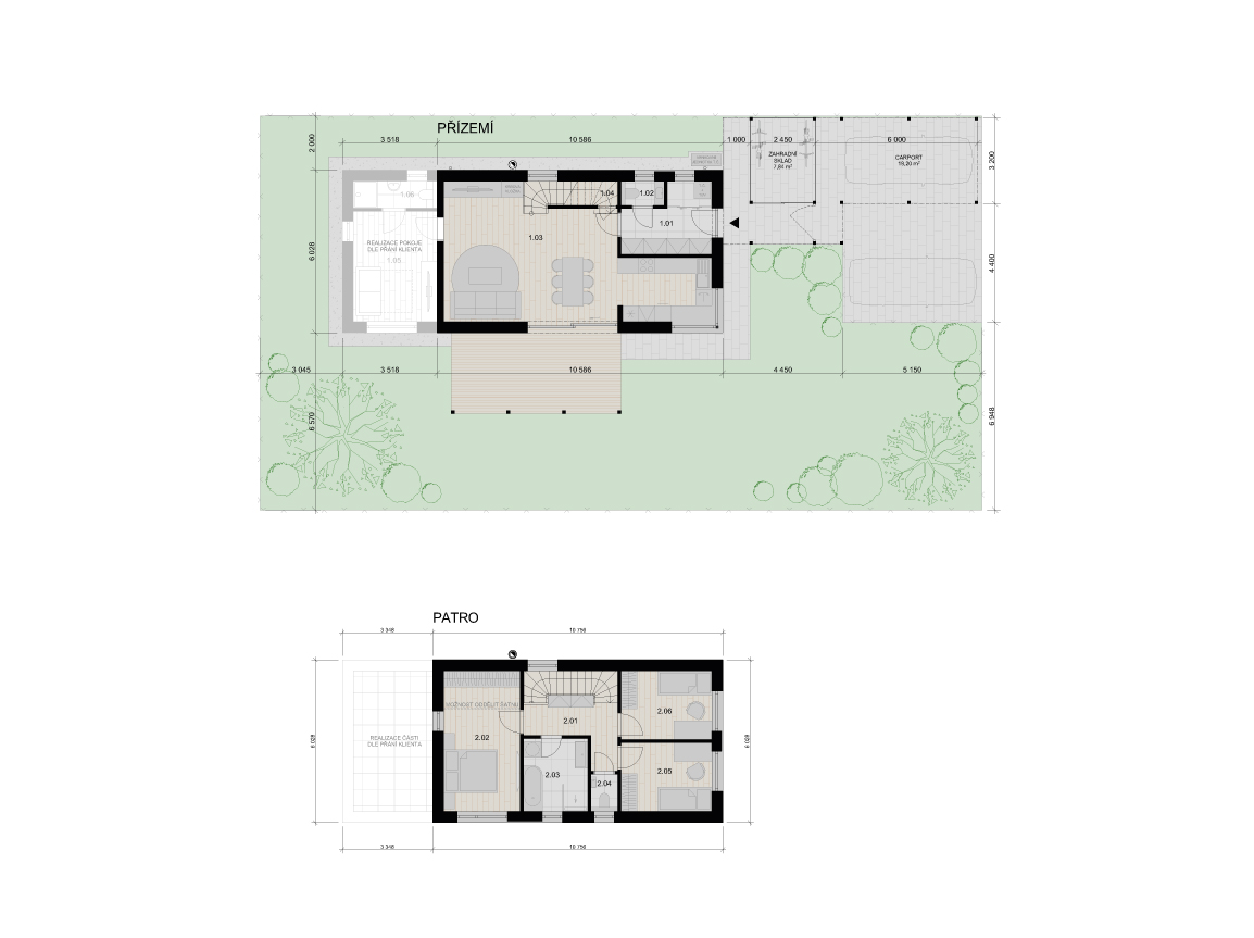
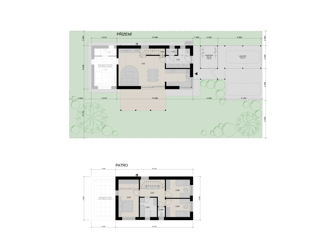
DISPOZICE 4kk
OBYTNÁ ČÁST 101 m2
TERASA 11 m2
POZEMEK 396 m2
Parkovací stání na pozemku 2 stání
Stupeň výbavy standard premium
DOSTUPNOST rezervován
CENA 8 499 000 Kč

FINANCOVÁNÍ

REZERVAČNÍ POPLATEK 200 000 Kč
PRODEJ POZEMKU 1 000 000 Kč
(do 2 měsíců po podpisu rezervační smlouvy)
ZÁKLADOVÁ DESKA 10 %
HRUBÁ STAVBA 30 %
PO OMÍTKÁCH 20 %
PO DOKONČENÍ 40 %
ZAJÍMÁ VÁS VÍCE?

KONTAKTUJTE NÁS

avatar
PRODEJ
ING. PAVEL DVOŘÁČEK
733 431 755
avatar
VÝSTAVBA
ING. MARTIN ZÁLESKÝ
777 278 271
avatar
ZA PROJEKTEM STOJÍ

NAPIŠTE NÁM